Distillation: producing/rectifying chaos

Core Studio Harvard GSD

Critic: Eric Höweler

Distil : to extract the essence of ; purify

Distil : to subject to transformation

Distil : to let fall, exude, or precipitate into drops or a wet mist

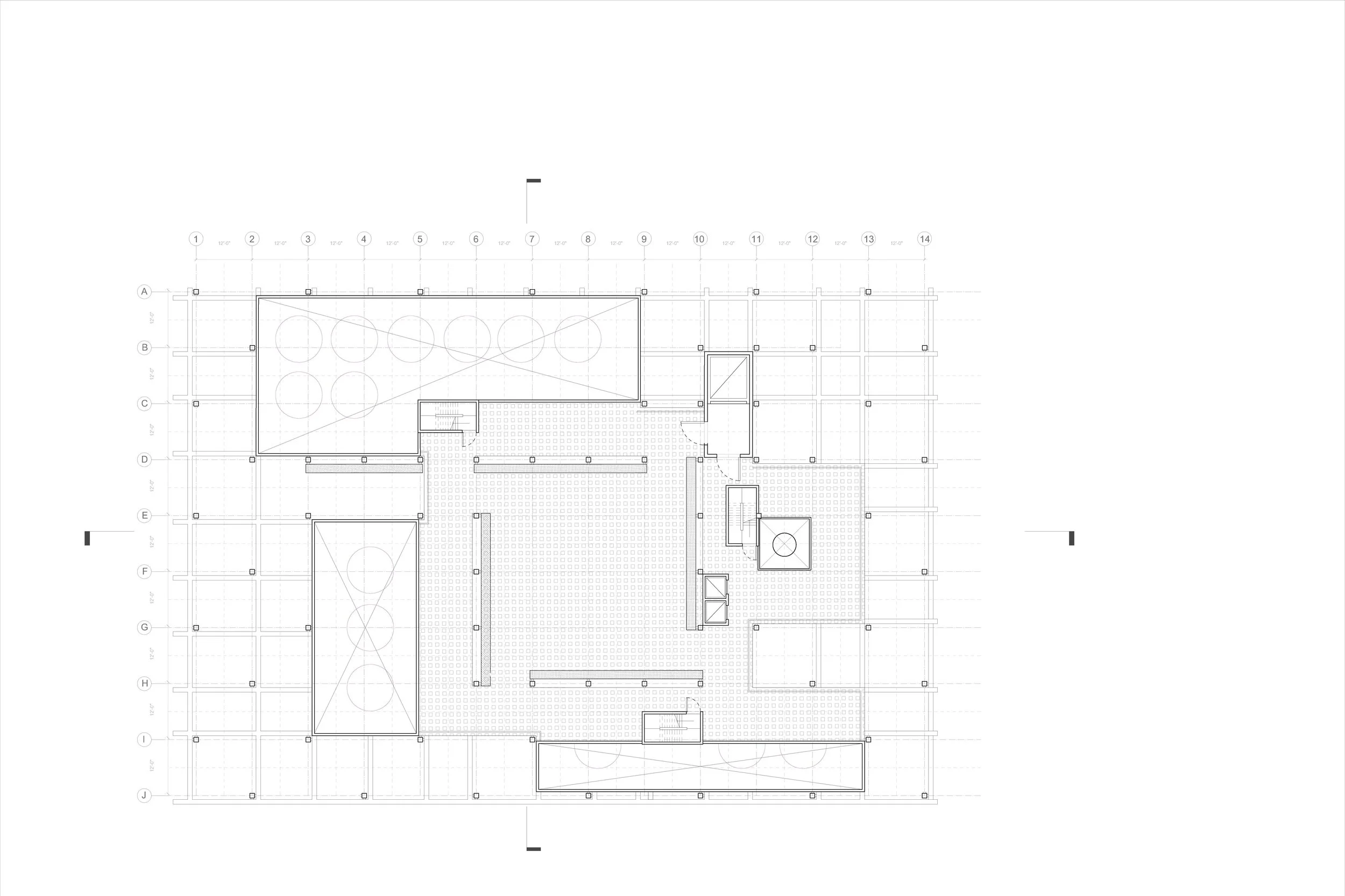
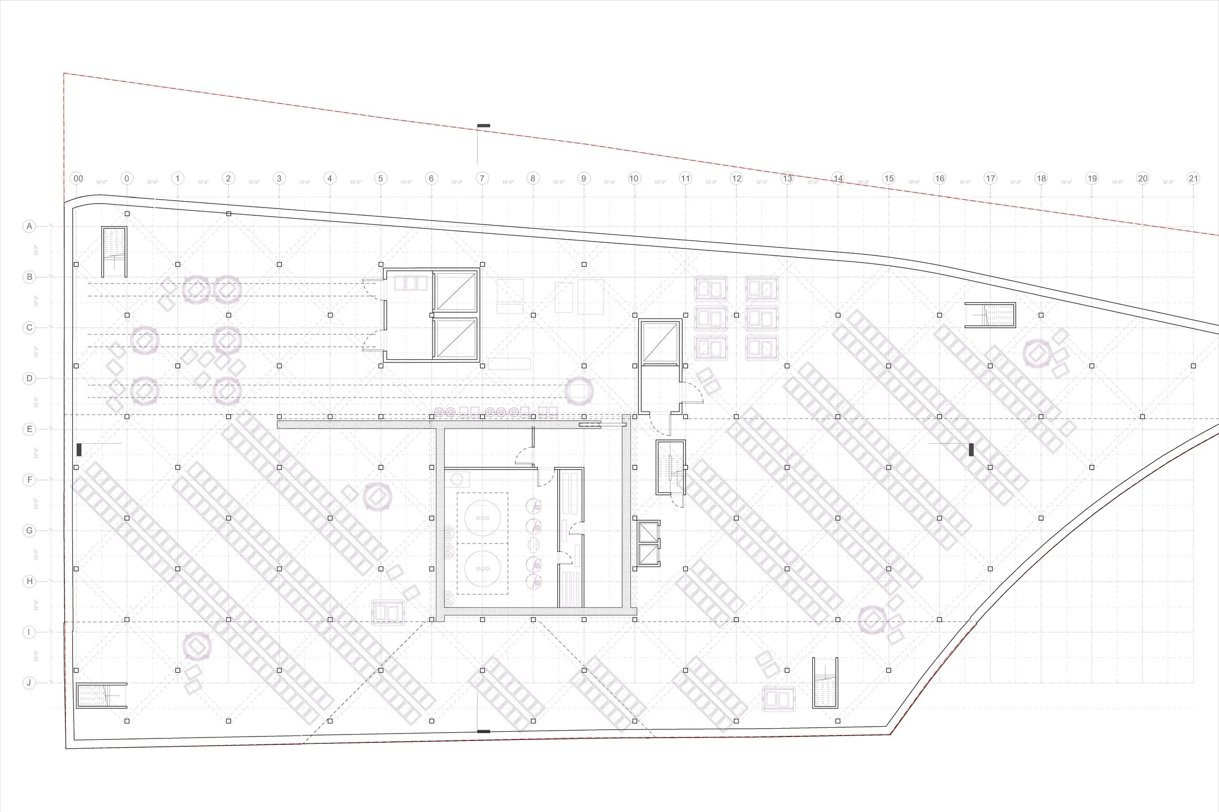
This distillery, sited between the Harvard Arnold Arboretum and its neighbouring post-industrial residential district, offers production space for whiskey and a gallery for the public. The public and commercial spaces are separated by two construction systems, one serving the operable, changing nature of production and the other providing conditioned, calm exhibition space. The sectional approach means that the building can accommodate all members of the public, including those under 21.

A structural system of eccentric column/beam connections subverts the order of the grid to provide variation in plan and section required to accommodate the different equipment for the distillation process.

Distillation is about discovery and a transformation of state.

The process requires order yet thrives in chaos.

Drinking involves discovery and a transformation of state.

We seek inspiration amidst inebriation.